top of page

Acer House

Epsom, Surrey

Developer Residential

Concept, Planning

Planning Granted 2014

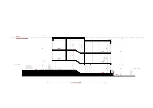
Sawkings Architects were appointed to develop a planning application for the erection of 12no. flats at a prominent corner site location in Epsom. Planning permission was granted in 2014.

bottom of page