top of page

Developer Residential

Concept, Planning

Epsom, Surrey

Acer House

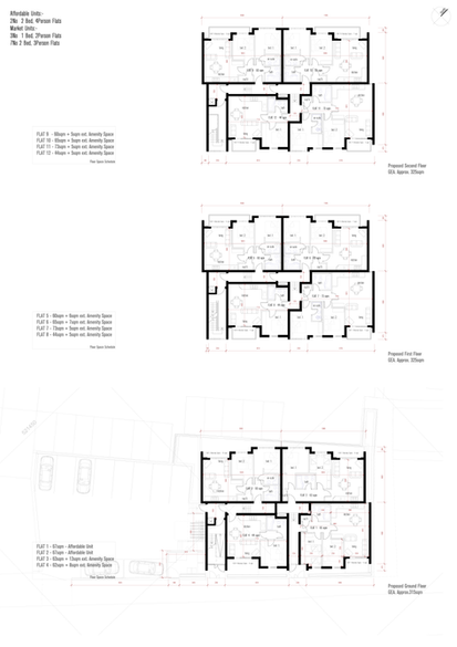
Sawkings Architects were appointed to develop a planning application for the erection of 12no. flats at a prominent corner site location in Epsom. Planning permission was granted in 2014.

Planning Granted 2014

bottom of page