top of page
Developer Residential
Concept, Planning, Technical, Build
Dorking, Surrey
The Crown
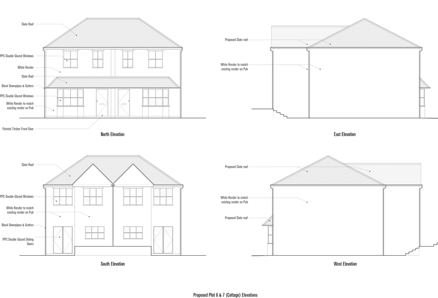
Sawkings Architects were appointed for the conversion & extension of a Public House into 3 No. dwellings, conversion & extension of outbuilding into 1 No. dwelling, erection of a two story Lodge at rear and erection of 2 No. semi-detached dwellings.
Planning Granted 2019
bottom of page










